本厚木の不動産売買|株式会社オレンジハウス > 物件一覧 > 厚木市戸室五丁目 新築分譲住宅 全1棟 > 物件詳細
~LDK×南向き×20帖~■庭あり■食洗機×乾太くん標準完備■生活利便施設多数■本厚木駅へのバス便豊富■











(※元利均等方式 金利5.00%まで ※返済年数5~50年まで入力できます)
(※ボーナスは年2回で計算しています。1000万円まで入力できます)
(※物件購入時、その他諸費用が発生する場合がございます)
| 所在地 | 神奈川県厚木市戸室5丁目 | ||
|---|---|---|---|
| 交通 | |||
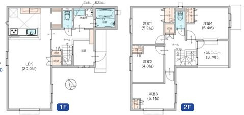
| 間取り/詳細 | 4LDK/ | 建物面積(坪数) | 102.26㎡(30.93坪) |
| 価格 | 3,480万円 | ||
| 駐車場/月額料金 | 有(1台)/- | ||
| 土地の敷金/保証金 | -/- | 借地料/借地期間 | -/- |
| 土地権利 | 所有権 | 土地面積(坪数) | 121.56㎡(36.77坪) |
| 傾斜地部分面積 | - | 路地状敷地 | - |
| 私道負担面積/セットバック |
25.30㎡/無 私道負担割合 : 1/3 |
高圧線下面積 | - |
| 地目/地勢 | 宅地/平坦 | 接道状況 | 一方(南 公道 6.1m) |
| 建ぺい率/容積率 | 60%/200% | 用途地域 | 第一種中高層住居専用 |
| 都市計画 | 市街化区域 | 種別/構造 | 新築一戸建/木造 |
| 階建 | 2階建 | 築年月(築年数) | 2026年 6月 (予定) |
| 総区画数/販売区画数 | 1区画/1区画 | 向き | 南 |
| 現況 | 未完成 | その他の法令上の制限 | 景観法/宅地造成及び特定盛土等規制法/準防火地域/日影制限有 |
| 取引態様/引渡時期 | 仲介/相談 | 建築確認番号 | 第2025SBC-確02235H号 |
| 物件番号 | 100206272 | 取引条件の有効期限 | 2026年02月23日 |
| 設備条件 |
|
||
| 備考 |
私共、オレンジハウスは地域密着を合言葉に営業しております。 その地域ナンバーワンを目指しておりますので、広告に掲載していない 未公開物件も多数ございます。 色々廻ったけど良い物件が無いなぁ。。。 頭金無くても平気かなぁ。。。 お家の買い替えってどうするんだろう。。。 まずはお気軽にご相談ください!! 有資格者がしっかり丁寧にご説明させて頂きます!! ◆お問い合わせは株式会社オレンジハウスまで◆ |
||
| 取扱会社 |
|
||
| QRコード |
このQRコードを読み取ることで、スマホでも物件情報を確認できます。 |
||
※地図上に表示される物件の位置は付近住所に所在することを表すものであり、実際の物件所在地とは異なる場合がございます。
厚木市戸室五丁目 新築分譲住宅 全1棟に関するこだわり条件から探す
厚木市戸室五丁目 新築分譲住宅 全1棟周辺の駅から探す